Quality Custom Cabins
 
 

Build Your dream

Cabin Masters has been building quality, custom cabins in the hill country since 2008.

Our cabins range from 392 ft² to 2,500 ft² and start at $175 per square foot.

All floor plans, interior and exterior finishes are completely customizable.

Explore our gallery below, or come see us in person at one of our model cabins in Fredericksburg or Llano, Tx.


 

OUR Cabins

 

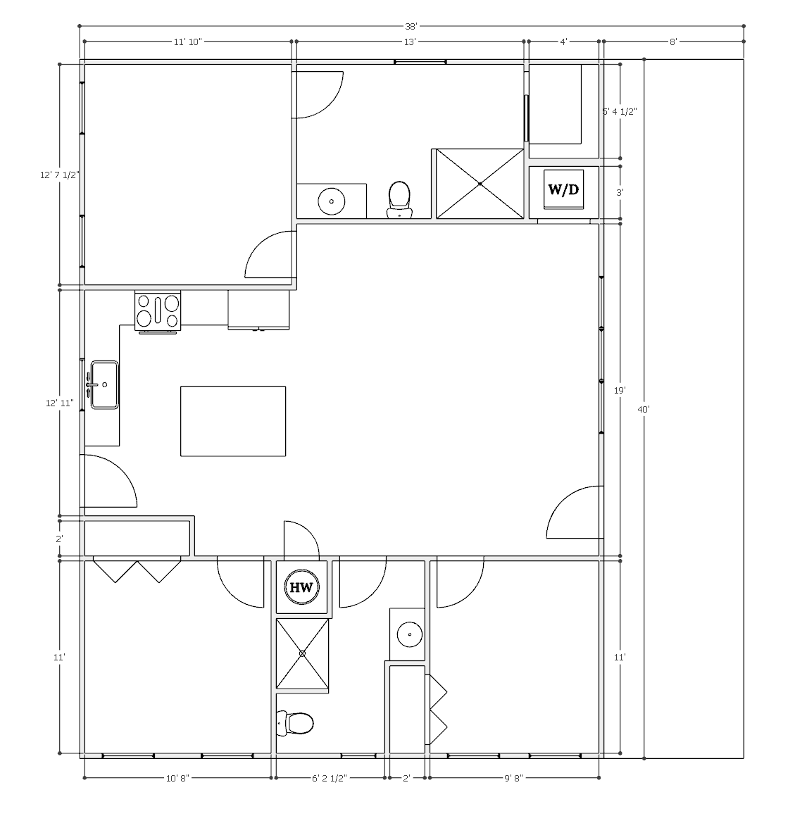
The Caliche

 

Caliche floor plan

Square feet: 1,200

3 bed, 2 bath layout with a full length porch leading straight into a combination living /dining area perfect for entertaining.

 

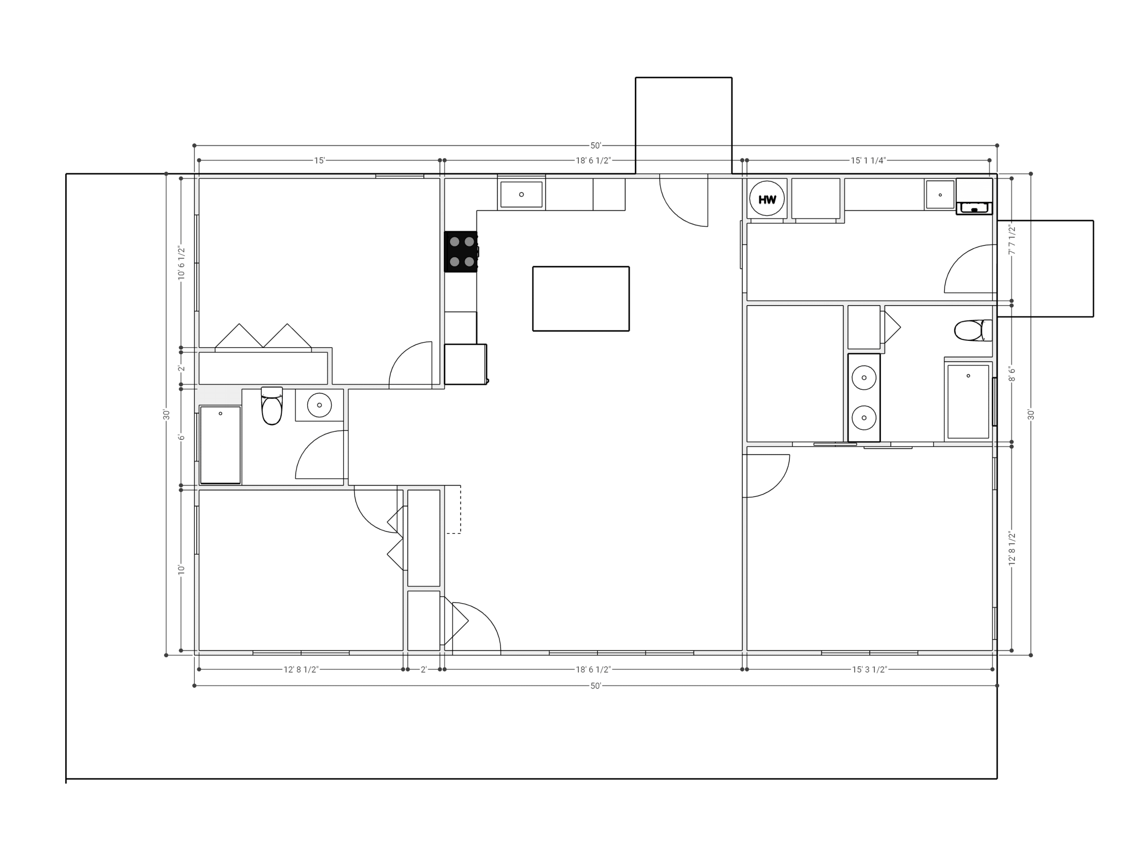
The Lone Star

Lonestar floor plan

Square feet: 1,500

3 bedroom, 2 bath layout with generous central living area and kitchen.

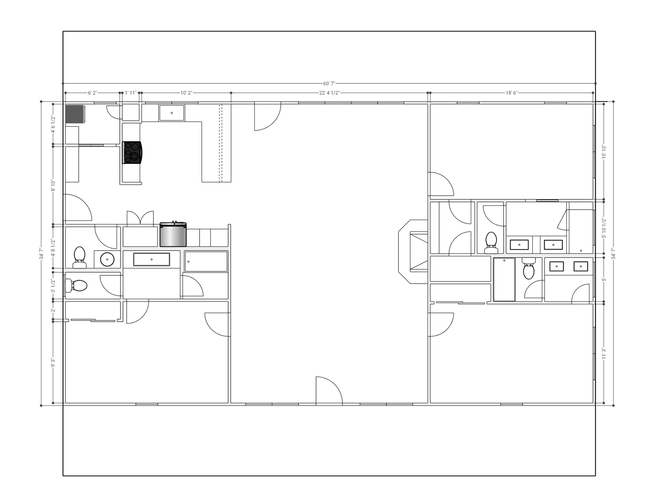
THe Longhorn

Longhorn floor plan

Square feet: 2,095

3 bedroom, 4 bath layout with large central living area and separate kitchen.

 

The Prickly Pear

Prickly Pear floor plan

Square feet: 936

Modest 2 bed, 2 bath cabin with just enough of a foot print for long term living.

 

The Roadrunner

Roadrunner floor plan

Square feet: 392

Minimalistic cabin perfect for a favorite hunting spot or secluded getaway on a budget.

The Whitetail

Whitetail floor plan

Square feet: 608

This model improves on the design of the road runner and offers more elbow room with separate bedroom and living areas.

 
 

Tour a cabin in person

 
 

Let's Get Started

 

Tell us everything


We’d love to hear about your build and answer any questions you may have. Give us a call or fill out the form below and we will get back to you as soon as possible.

You can also stop by our model cabins in Fredericksburg and Llano, TX to see our cabins in person.


 

Contact Info


info@cabinmasters.com
830-313-9401

Cabin Masters
504 Longhorn St
Fredericksburg, TX 78624

Office Hours: M-F 8am-5pm